Обяви За нас Контакти
Продава 3-СТАЕН
град София, Манастирски ливади
248 185 €
485 407.67 лв.

(2 457 €, 4 805.47 лв./m2)
Цената е с включено ДДС
История на цената
Коригирана в 16:28 на 20 януари, 2026 год.
Обявата е посетена 213 пъти.
Площ:
101 m2
Етаж:
3-ти от 5
Газ:
ДА
Строителство:
Тухла, Ще бъде въведен в експлоатация 2027 г.

Описание на имота:


От доказан инвеститор!
Продаваме двустайни, тристайни и четиристайни апартаменти в нова сграда в строеж в кв. Манастирски ливади - запад, на спокойна улица с бърз достъп до 'Околовръстен път' и бул. 'Братя Бъкстон'.
Сградата е с модерна фасада, съчетаваща комбинация от ламарина и силикатна мазилка с 10 см. изолация. Дограма - PVC с троен стъклопакет.
Висок клас на използваните материали!
Инвеститор с дългогодишен опит!
Отопление на газ и изводи за климатици.
Функционални разпределения!
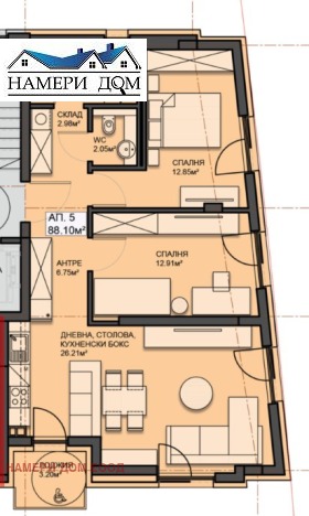
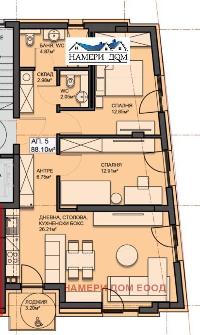
Ап.5 е тристаен на ет.3 (над партер), като партерът е с гаражи и паркоместа. Изложение - север - изток - запад. Застроена площ 88,10 кв.м. Площ с общи части 101,30 кв.м.
Състои се от антре (6,75 кв.м.); дневна, столова и кухненски бокс (26,21 кв.м.); баня с WC (4,87 кв.м.); склад (2,98 кв.м.), втора тоалетна (2,05 кв.м.), спалня 1 (12,85 кв.м.); спалня 2 (12,91 кв.м.) и източна лоджия (3,20 кв.м.).
Налични гаражи и паркоместа на ниво партер.
Начин на плащане - стандартна схема:
30% при подписване на предварителен договор;
30% на Акт 14;
30% на Акт 15;
10% на Акт 16.
При плащане с ипотечен кредит, схемата подлежи на промяна.
При интерес, моля не се колебайте да се обадите - тел. 0883 77 11 77 - инж. Станислава Достумска
Особености
Тухла
Асансьор
С гараж
С паркинг
Интернет връзка
Контрол на достъпа
Възможност за дан. кредит
За контакт:
0883771177
Агенция:
НАМЕРИ ДОМ ЕООД
0883771177
В imot.bg от 2023 г.
nameridom.imot.bg
Адрес:
област София, гр. София, ул. Симеоновско Шосе 258, Ет. 1, Ап. 5
http://www.nameridom.bg
ИЗПРАТИ ЗАПИТВАНЕ
ИЗПРАТИ ЗАПИТВАНЕТО

Продава 3-СТАЕН
град София, Манастирски ливади
Обява: 1c176483672852236

248 185 €
485 407.67 лв.
История на цената
(2 457 €, 4 805.47 лв./m2)

Цената е с включено ДДС
ЗАПАЗИ ОБЯВАТА

Местоположение: град София, Манастирски ливади

Допълнителни данни за имотите в района и сравнение с други райони

Покажи

Период

и 1 месец

* Средните цени са определени чрез медианна стойност